APARTAMENTO PRAÇA
São Paulo, SP ⬝ 2023 ⬝ 70m2
Fotos: Miti Sameshima
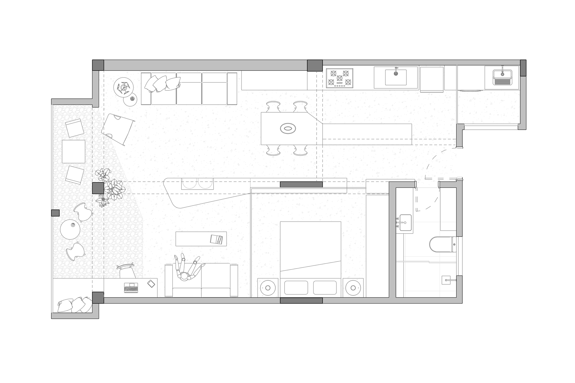
Localizado em um edifício projetado por Artacho Jurado, no bairro da Vila Buarque, o Apartamento Praça foi projetado para um jovem arquiteto, que optou por se mudar para o centro da cidade de São Paulo. O projeto buscou potencializar ao máximo a integração entre os ambientes, conforme desejado pelo morador e também coautor do projeto. Salvo as paredes que delimitam o banheiro, todas as demais foram demolidas, configurando assim, um grande ambiente aberto e multifuncional.

nossos projetos

Back to Top