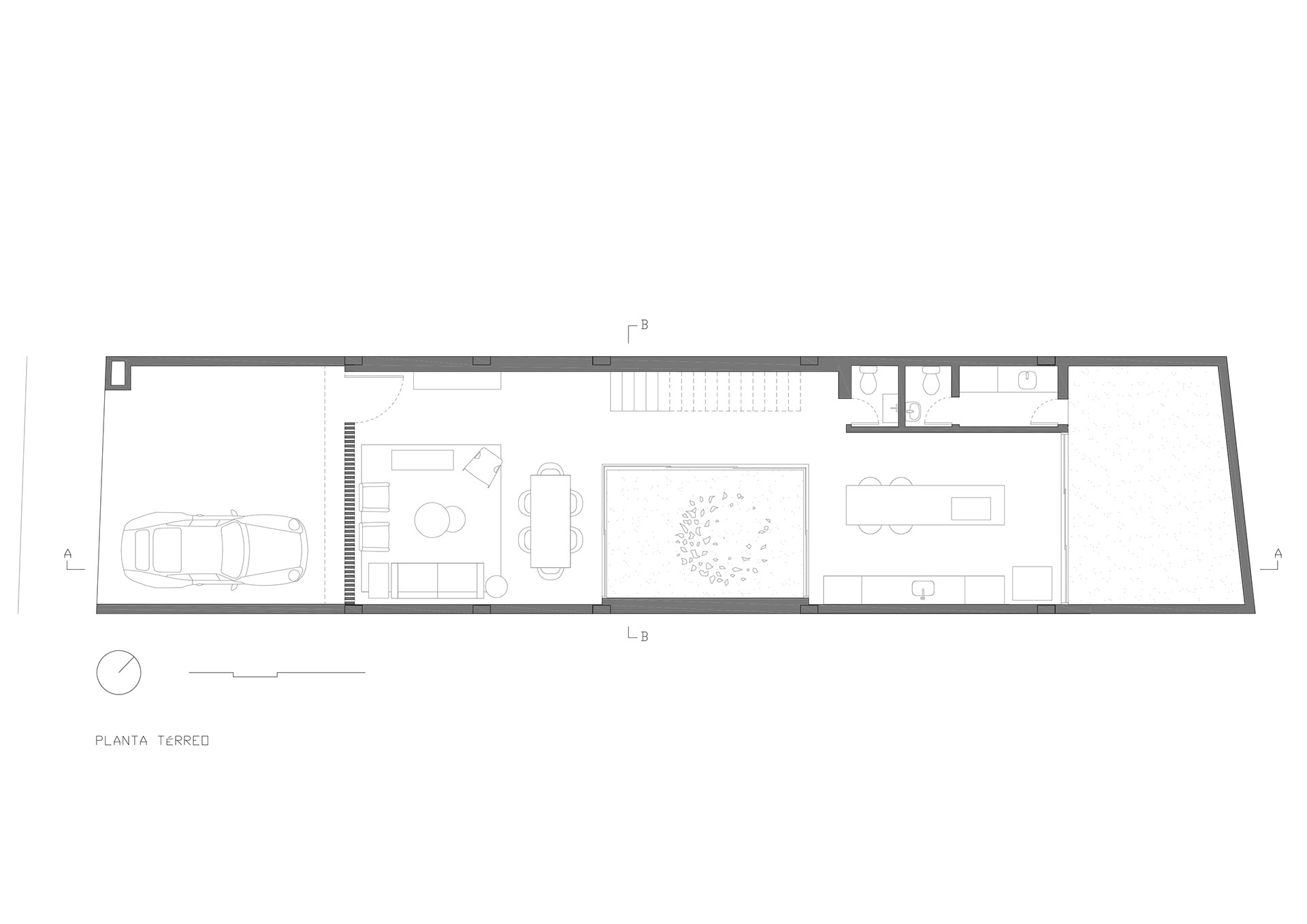
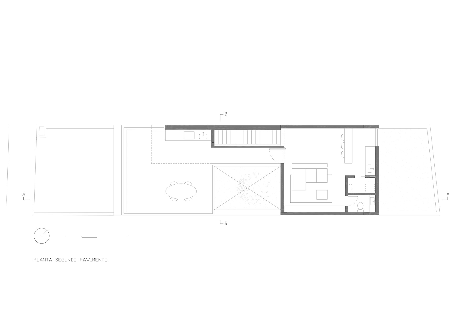
DESENHOS
DIÁRIO DA OBRA
CRÉDITOS
Autoria: Daniela Zavagli e Guilherme Prado Zorzella
Colaboração: Luigi Franco, Sofia Daris
Tipologia: Residencial
Localização: São Paulo, SP - Brasil
Área terreno: 150m2
Área construída: 220m2
Ano de projeto: 2019
Ano de conclusão da obra: 2022
Cálculo estrutural: Gama Z Engenharia
Fotografia: Miti Sameshima
Colaboração: Luigi Franco, Sofia Daris
Tipologia: Residencial
Localização: São Paulo, SP - Brasil
Área terreno: 150m2
Área construída: 220m2
Ano de projeto: 2019
Ano de conclusão da obra: 2022
Cálculo estrutural: Gama Z Engenharia
Fotografia: Miti Sameshima